There’s still something unnerving about AI art, as fantastic as some of it can be. It didn’t hit me until I was watching this video that AI still struggles to insert legible letters, numbers, and words. The title cards in this video are fine (probably not AI created), but if you look at things like printed pages or license plates in the other sequences, what it feels like to me more than anything else is when you’re dreaming and trying to read something and no matter how hard you try, you just can’t make it out—how it becomes increasingly frustrating the harder you try. (I remember reading somewhere not too long ago that this is common; we aren’t wired to interpret that kind of information in our dreams.)
Its Human Suit Finally Sloughs Off
Happy Bastille Day!
My Grandmas Are Long Departed, But I Can See Both Of Them Saying This
365 Days Of UNF: July 14th
“It’s Not Gonna Suck Itself!”
I Could Live There
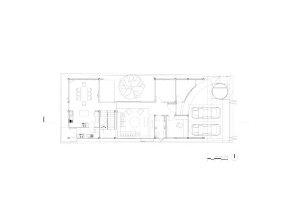
MNG Courtyard House, Bangkok,Thailand by JI+TA ARCHITECT

The plot is only 10 meters wide and is surrounded by abandoned land, so designing a layout to suit a resident was quite challenging. An inner courtyard was created to allow the house itself to have its own view, enabling every room to breathe. Therefore, the courtyard is the heart of the house, and the layout is organized around it.
On the ground floor, the double-volume living room is in the middle of the house beside the courtyard. Gigantic floor-to-ceiling glass sliding doors are placed between them to allow sunlight to shine in and create a sense of a seamless boundary between indoor and outdoor space. The upper-level corridor that runs between the living area and the courtyard is designed to disturb this sense as little as possible by using the slimmest steel structure and glass railing. The open-plan dining and kitchen area, which is also attached to the courtyard, is placed at the back of the house. At the front area of the house, there are a multi-purpose room, a powder room, and a working room. Indoor space and the street outside are separated by a parking area that has a building component designed using simple geometric shapes that fit into the limited space. The storage room, in combination with the mailbox and garbage area in front of the house, is designed in a simple cylindrical shape, along with a curved walkway and a shoe room, making it easy to walk in and creating a turning circle for the driver to park the car easily.
On the upper floor, the kids’ bedrooms are placed at the back of the house. The balcony on the second floor next to the courtyard is designed with a curved shape to accommodate tree growth and blossoming.
The master bedroom area has a small living space adjacent to the courtyard, where sunlight and fresh air flow in through a large casement window. The master bedroom and walk-in closet, designed to have a flowing space, are placed along with a linear terrace that has a cast-iron shading to block excess sunlight and increase privacy for this area while allowing the wind to ventilate.
Fosse, Fosse, Fosse!
The amazing and beautiful Suzanne Charny!
Sweet Charity – American musical comedy-drama film directed and choreographed by Bob Fosse in his feature directorial debut, written by Peter Stone, and featuring music by Cy Coleman and Dorothy Fields.
Get In There
Guilty As FUCK
Also That There Is No God
???? ???? ????
Our Elders Tried To Warn Us, But We Didn’t Listen
#Truth
Bat. Shit. Insane.
365 Days Of UNF: July 13th
Meh.
I bought it as a curiosity. I’m not that familiar with Lorde’s work (actually confusing her with Madonna’s daughter Lourdes at one point) but I understand each of her albums has some gimmick factor. In this case it’s being released on a “clear” CD. I was kind of surprised it actually worked, but after listening to it my reaction was a definite “Meh.” I’ll give it a few more listens and see if it grows on me. It happens.
This Image Flashed In My Head…
…when my ENT described how they were going to access the tumor on the back of my tongue to remove it.
Okay, it’s not that bad. It’s only my jaw that they’ll be splitting apart and then putting back together after the tumor is removed. AS IF THAT’S ANY BETTER.
We already met with the surgeon who’s going to be taking a bit of flesh from my arm to reconstruct the part of my tongue that’s being removed. We meet with the speech/swallow therapist on Monday, the radiation oncologist on Tuesday, the plastic surgeon and the medical oncologist a week from Wednesday, and then one last visit with my ENT the following week before my surgery.
As I told Ben (and may have written here already) I’m swinging between calm acceptance and freaking the fuck out. Yeah, this ain’t my first trip to the rodeo, but I thought I was done with this crap twenty years ago. And this time getting rid of it is much more…complicated…than it was last time.
Deep breaths, Mark. Deep breaths.
Vomiting It All Up
Recapping The Weeks Madness With Jeff Tiedrich
as another stupid week comes to a close here in America, let’s look back at the dumbest fucking shit that happened.
monday: it’s a bird! it’s a plane! it’s an entire nation of fuckwits!
since this is a year that ends in a number, there’s a new Superman movie. I think this is the seven millionth in the series.
apparently, the dumbest imbeciles in the universe are power-loading their diapers over this newest installment, because the movie really leans into the fact that Superman is — get this — an immigrant.
I know, right? that’s been Superman’s origin story since the very beginning, and somehow MAGA is just figuring this out right now — and they’re tearing themselves to pieces over the whole he’s not from around hereaspect and demanding to know ‘why can’t we just skip ahead to the part where he punches the shit out of people we hate?’
but speaking of skipping ahead, let’s skip ahead to MAGA’s dumbest take.
Superman is a literal alien. He didn’t come to America illegally. He landed here.’
I’m sorry, Superman did what now? he landed here?
you have to love the resourcefulness of MAGA. this woman has invented a whole new carve-out for immigration. if you can get here from space, you’re cool.
never mind that the baby Kal-El arrived on earth without a single shred of documentation. calm the fuck down, Tom Homan — what part of ‘he got here in a rocket’ do you need explained to you?
so all those whatsits from Mars Attacks are legal, too? good to know.
what about the Predator? he got here in his very own spaceship. I guess we should just let him hang out?
by the way, Superman has been the exact opposite of MAGA since Day One.
that’s from the 1950s.
tuesday: new scandal drops
oh joy of joys. Fox News found object Jesse Watters is back with one of his ‘rules for men.’
“rules for men: a man should never photoshop his picture — ever. a man who photoshops his picture is a woman.”
this tiresome twatwaffle never stops coming up with asinine things that literally make a man a woman. according to Jesse — for those of you keeping score at home — the ever-growing list includes such unmanly abominations as “don’t eat soup in public,” “don’t cross your legs,” “don’t drink from a straw,” “don’t wave your arms in public,” and my all time personal favorite, “real men don’t talk about masculinity.”
let’s discuss this ‘a real man never photoshops his picture’ rule — because I know of a fragile narcisscist who never stops pasting his dumbfuck head onto the bodies of cowboys, prizefighters, athletes, astronauts — and, most recently, that immigrant who’s not illegal because he landed here.
seriously, this was tweeted out by the official White House not-twitter account.
how unmanly. Donny is literally a woman now.
as Jesus wisely counseled us in the Sermon on the Mount, blessed are the meme creators, for they shall win the internet.
wednesday: we’ve officially hit rock bottom
well, there it is. there is literally nothing Dear Leader could do that MAGA couldn’t tie itself into a fucktangle to forgive.
“The future of our country is too important. It is not wonderful if Trump had sex with a lot of children, but as Christians, we need to forgive. And it is good that he is the president, yes, even if he rapes women and girls.”
yes, this is an actual tweet from an actual person, and I don’t even know what to say, except that with all the news of the Epstein Files, we knew we’d get here eventually. it was inevitable.
oh wait. this might actually be a parody account. sometimes the stupid is me. good lord, I sure hope that in this case it’s me.
thursday: runnin’ with the devil
let’s check in with anti-abortion activist Seth Gruber. Seth’s a real charmer, as I’m sure you’ll agree.
“one of the reasons we know that abortion is demonic and satanic is that so many of the feminists, or feminazis, to quote Rush Limbaugh … some of abortion’s most energetic and loud cheerleaders are ugly — and fat.”
wait — that’s it? that’s how you know someone is demonic? they’re fat and ugly?
excuse me for a moment, but I have to make a phone call.
yeah, hi, Ghostbusters? can you head down to Motel-a-Lago? there’s a demonic infestation there. you’ll be looking for a guy on the golf course wearing a red hat. hey, thanks.
friday: so mad. so sad.
FBI Deputy Director Dan Bongino (yes I know, I can’t believe I just typed those words in that order either) is having both a Big Mad and a Big Sad right now.
Danny’s all caught up in a sadmad because Pam Bondi ruined his entire week by announcing that the Epstein Files were actually just a weird dream that we all just woke up from.
Danny wants Pam outta here, and he’s drawn a line in the sand: to show everyone how serious he is, he gave himself a day off.
yeah! that’ll show ’em.
‘hey, where’s Dan? I have some papers for him to sign.’
‘oh, Dan took the day off.’
‘huh. I guess it’ll wait until Monday.’
‘yeah, just leave it on his desk.’
no word on whether Dan took a sick day, a personal day or a vacation day. but Danny’s now saying either Pam resigns or he quits.
the thing is, this is all just performative-nonsense theater. Bongo Danny fucking hates his job and is look for any excuse to quit, because it’s hard work — and he’s been complaining about it since day one.
Danny thought he’d get to wear cool sunglasses and flash a badge — and maybe eat for free in restaurants. nobody told him he’d be sitting behind a desk, doing boring paperwork.
what Dan Bongino really wants is to go back to the easy life of being a douchebag shitposter. boo fucking hoo.
congrats, Danny, you’re the first Week in Stupid subject to get both a binky and a tiny violin.
you know what? let’s go out on a high note. let’s repost Bongo Danny’s very first appearance in This Week in Stupid, from all the way back in July 2023, when Politico reported that The Danster got ejected from a Palm Beach restaurant.
hey, aren’t you noted conservative douchebag Dan Bongino?
shut the fuck up
what’s happening here, Dan?
shut the fuck up
isn’t this the Cucina restaurant in Palm Beach?
shut the fuck up
pretty fancy restaurant, isn’t it, Dan?
shut the fuck up
it looks like they’re throwing your ass the fuck out onto the sidewalk
shut the fuck up
what’cha do to get tossed, Dan?
shut the fuck up
have a great day, Dan.
shut the fuck up
ah, memories.
saturday: ?
hey, it’s still morning as I sit here writing this — but give it time, I guarantee you that some dipshit wingnut is going to do something stupid before the day is over. you can set your watch to it.
365 Days Of UNF: July 12th
So The Saga Continues
A couple weeks ago I wrote about receiving two Minidisc players that I was intending to use for my art project, and how I swapped the working guts from the red player I’d gotten a week before into the blue shell of the non-working one I’d just received and vice versa. Well, the red one was so pretty I didn’t want to tear it apart and just mount it. I wanted to be able to use it. So I went back online and located the cheapest working E75—cosmetic condition and color be damned—and ordered it with the intention of swapping its working inner mechanism into the red shell and then using the broken mechanism and the shell of the working unit for the project.
I located a kind of beat up silver-color player that was listed as “tested-working” for $65; substantially less than what these normally go for. I asked the seller for photos of the gumstick battery door terminals since that’s a good indication of the overall health of the unit and how it had been cared for over the course of its life. They were pristine; not a bit of corrosion on them. I completed the purchase.
The player arrived today and I verified that it worked as advertised. The shell wasn’t in nearly as bad condition as it had appeared in the auction photos. Yeah, the white plastic surround had suffered the same yellowing that all white plastic does over time, but the metal shell itself cleaned up nicely with a bit of windex and a microfiber towel. So I set about swapping the guts, and about 20 minutes later (without losing any of the microscopic screws holding the players together!) the guts were swapped and I had a beautiful red player to use and add to my collection.
The silver player’s shell and the non-functional mechanism that has now been transplanted twice have been mounted for display.
I have one more player/recorder arriving next week for disassembly and mounting and then I’ll call it quits for a bit—if for no other reason than I currently have no more wall space available to display this shit without moving a lot of things around.
“It’s Not Gonna Suck Itself!”
You Hear That, Mr. Trump? That Is The Sound Of Inevitability
Two people I’d rather not ever think about for the rest of my life? Comrade Donald Trump and the late Jeffrey Epstein. But here we are.
I suppose it was inevitable. I mean, in a lot of ways MAGA is the bastard child of QAnon and the Westboro Baptist Church. We’re talking about people who’ve devoted a seriously big chunk of their daily lives to thinking about sexualized anti-government conspiracies. People who’ve built complex, contradictory theories about political figures (mostly Democrats) and Hollywood elites maintaining a series of subterranean facilities where kidnapped children would be raped and then murdered for their adrenochrome. People who claim to believe trans folks are lined up outside high school bathrooms and locker rooms so they can sexually assault girls. People who spend a LOT of time thinking about forced sex with kids.
So yeah, the ‘suspicious’ death of Jeffrey Epstein is chum in the water for MAGA. When Trump’s pre-election team promised to expose the “truth” about Epstein, MAGA ate it up with a spoon. They absolutely believe Epstein was murdered because he possessed sexually compromising material on powerful figures–a so-called ‘client list’. When asked about that list, Attorney General Pam Bondi said, “It’s sitting on my desk right now to review.”
Then on Friday evening–the 4th of July holiday weekend–Bondi quietly announced, “Hey gang, guess what, there IS no client list! Oopsie! Also? Epstein killed himself! So case closed! How about those Red Sox, huh?!”
MAGA was not amused. You spend years spreading chum in the water, you expect to catch a shark. Being told there IS no shark doesn’t go over well. And given Trump’s long, close relationship with Epstein, it was inevitable that things would get weird and nasty.
But nasty enough to get MAGA to turn on Mr. MAGA his ownself?
I was curious enough that I looked into one of the MAGA-most corners of the Intertubes. I used to check in on the ‘patriots’ of FreeRepublic on a semi-regular basis, just to have some idea of how their fevered right-wing brains work. Snce the re-election of Comrade Trump, I haven’t had the stomach for it.
Until yesterday. And reader, the MAGAverse is absolutely furious. Furious not just at Bondi for her clumsy bait-and-switch approach, but also at their boy Trump. Here are a few of the comments made on FreeRepublic:
I woke up this morning with the realization that the only explanation for this is that Trump is on the list. Nothing else makes sense. This is like Watergate. It will never go away, and it will lead to Trump’s resignation.
–by E. Pluribus Unum (Democrats are the Party of racism, anger, hate and violence.)Something very big is being covered up.
–by Highest Authority (DemonRats are pure EVIL)Let’s face it: Pam Bondi is doing just what Trump wants her to do.
–by hcmamaI think we all need to wake up to the real possibility he’s on that list.
–by Lil Flower (American by birth. Southern by the Grace of God. ROLL TIDE!!)Looks pretty suspicious to go from “The List is ON My Desk Right Now” to “The List Doesn’t Exist.” Someone intervened that has the power to stop the list from being released by the Attorney General of the United States.
–by Bon of Babble (You Say You Want a Revolutioan?)This decision is way past bondi’s pay grade. This is Trump. Period.
by USS Alaska (NUKE THE MOOSELIMB TERRORIST SAVAGES)
When you see a Freeper who signs his posts with ‘Nuke the Mooselimb Terrorist Savages’ turn on Trump, you know they’re serious. Not necessarily sane, but serious. The reality that their Golden Boy might be on the List of Epstein Kiddie Diddlers (if one actually exists) has to be massively discouraging for them. One way of dealing with that is to create NEW conspiracy theories to explain it. For example, there’s a contingent of Freepers who’ve decided to blame…guess who? That’s right; the Jews.
Ask Israel. They control The Stable Genius…
by Captainpaintball (America needs a Conservative DICTATOR if it hopes to survive. )
Everybody knows Trump and Bibi Netanyahu are BFFs. Combine that with the suggestion that Epstein was some sort of FBI/CIA/Mossad agent, and you’ve got another tasty conspiracy to dine on. But even better (and by ‘better’ I mean ‘more delusional’) are the Freepers who see all of this as part of Trump’s Super Secret Clever Plan to Thump the Democrats.
I think it’s POSSIBLE that genius Trump is making this too big to go away by showing a coverup. When the truth is released…we will get suicide after suicide with DimWITS and RINOs leading the way.
by politicianslieMy conspiracy theory. The Epstein files contain information that can bring down 0bama, Clinton, Clapper, Comey, Brennan… That is why they have to sit on the Epstein files
by Steven Tyler
Makes perfect sense, doesn’t it. Trump promises to release the Epstein Files to get people excited, then claims the files don’t exists, which gets people even more excited. Eventually all that excitement will reach the boiling point and then Trump will hold a press conference and reveal…Hey Presto! The files DO exist! And they implicate ALL of Trump’s enemies! Genius! Applause and fireworks! A chorus of angels sing as the anti-MAGA deviants are led away to concentration camps in Sudan!
Jesus suffering fuck, dealing with MAGA is exhausting. I need a drink.
































































































































































